Kiedyś napisałem na gorąco o kilku sprawach, o których powinien wiedzieć analityk. Już po siedmiu latach mam kolejną refleksję o roli analityka :)
Jak wiadomo konsultanci nigdy nie mówią wprost, zacznijmy zatem od pewnej historii...
Jak urządzić mieszkanie?
Sęk w tym, że nie bardzo wiem jak. Moje kawalerskie kwatery przypominały koszary. Z tego względu dla uwicia rodzinnego gniazda postanowiłem skorzystać z profesjonalnej pomocy.
Projekt wykonawczy - bo o tym mowa - został wyceniony przez architektów na 6,1k. OK, pomyślałem, jeśli ma być dobrze i full profeska, to niech będzie.
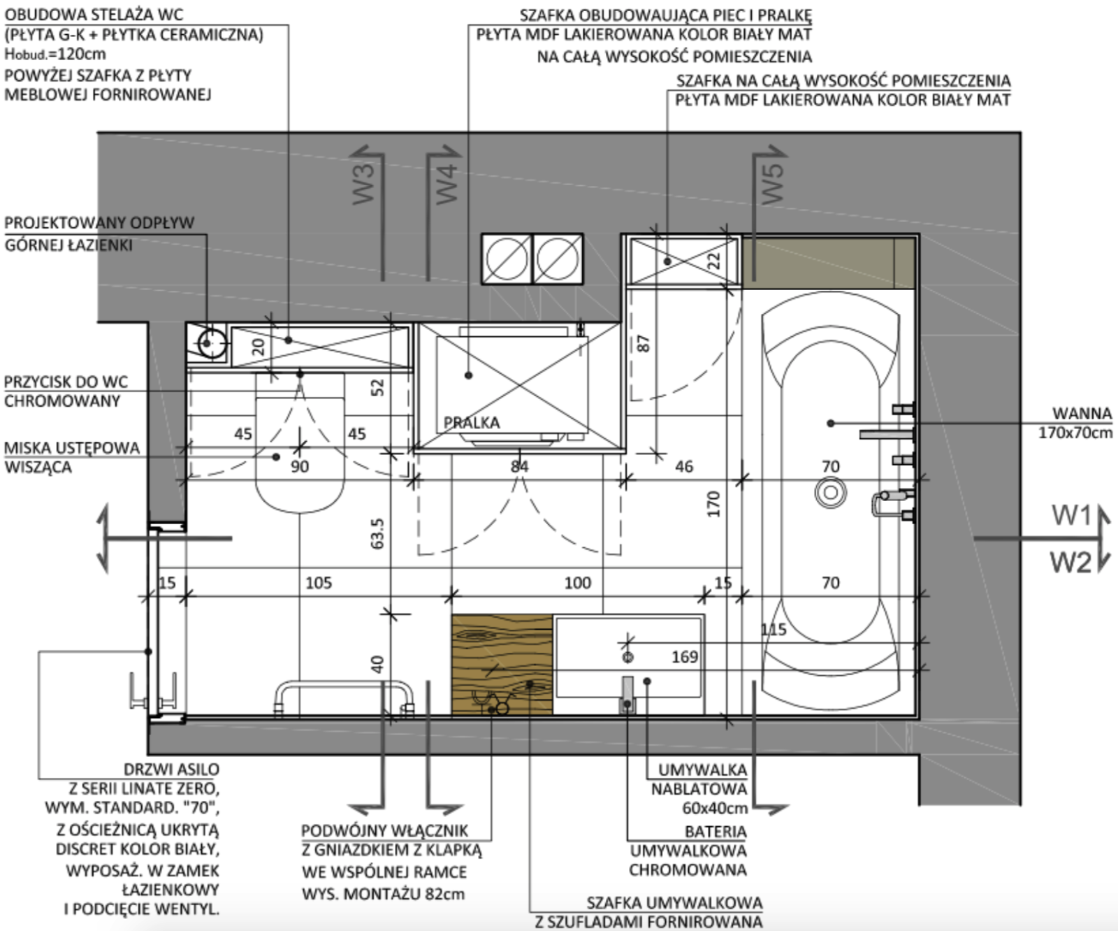
Akcja rozpoczęła się od inwentaryzacji, a efektem - jak mnie pouczono - miał być PROJEKT WYKONAWCZY. Kompleksowa dokumentacja dla wykonawcy wykończenia, dzięki któremu będzie on mógł "zrobić" mieszkanie kropka w kropkę w zgodzie z zamysłem architektów.
-- Czyli moja ekpia będzie wszystko wiedziała co i jak z tego projektu?
-- Tak! - zdecydowanie potwierdzili architekci - Nie będą musieli zadawać żadnych pytań.
Skąd ja to znam - przemknęło mi przez głowę.
-- Więcej wiary! - skrytykowałem się w myślach - przecież budowle wznosi się od tysięcy lat. Architekci nie są w ciemię bici i wyłożyłem pierwszą ratę - 3,3k.
Co z tą fugą?
Projekt rzeczywiście robił wrażenie: gruby z zewnątrz, a w środku wszystko szczegółowo rozrysowane. Nawet rozłożenie płytek w łazienkach zostało precyzyjnie zaplanowane tak, że odniosłem wrażenie, iż sam bym sobie wykończył to mieszkanie, posługując się rzeczonym projektem. Bez słowa wyłożyłem drugą ratę - 2,8k.
Któregoś dnia zadzwonił do mnie Pan Czarek - główny specmajster z ekipy wykonawczej.
--Panie Michale, fugi się nie schodzą...
Fugi nie schodziły w dolnej łazience. Rząd płytek drewnianych jakoś nie chciał spasować się z płytkami ceramicznymi. Ale łaj?
Wnikliwa analiza w składzie: ja, ekipa i architekt zaowocowała oczywistą odpowiedzią - do projektu wkradł się błąd. Płytki drewniane miały wysokość nie 30cm lecz 31,5cm !
Jak to możliwe - zachodziłem w głowę. W projekcie za prawie 7 klocków takie rzeczy? Architektom trzeba oddać jedno, że sytuację uratowali - i tym razem i w kolejnych przypadkach.
Panie Michale, nie jesteśmy idiotami
-- Panie Michale, nie jesteśmy idiotami - zaczął majster Czarek. -- Przecież ja wiem, jak położyć płytki. No, ale kazał Pan robić wg projektu, a ja z projektem nie będę się kłócił. Po co oni tu piszą, że "drzwi mają być z podcięciem wentylacyjnym? Przecież wiadomo, że mają być podcięte. Po co piszą, że kibel ma być wiszący? Przecież jak go Pan przywiezie, to się okaże czy wiszący, czy stojący.
Tu Pan Czarek pokazał mi, jak wyobraża sobie projekt wykonawczy.
-- A gdzie reszta szczegółów? - zapytałem zdziwiony.
-- Resztę, to sobie dogadamy.
Coś tu poszło nie tak
Mieszkanie zostało wykończone jak trzeba. Siedziałem zadumany na schodach, trzymając w ręku PROJEKT WYKONAWCZY - plik kartek, za który zapłaciłem 6,6k. Coś tu jednak poszło nie tak.
Nie kwestionuję ceny za pracę architektów, wiadomo, że robota kosztuje. Kwestionuję cel, do którego wspólnie się skomitowaliśmy. Nie chciałem płacić za projekt, bo te rysunki nie mają dla mnie żadnej wartości. Chciałem zapłacić za doprowadzenie mieszkania do takiego stanu, jaki spodobał mi się na rysunkach. O to mi chodziło!
A co z tym analitykiem?
Analityk w zespole, analityk jako PO, analityk jako Proxy PO...itd. Każda z tych konfiguracji ma sens. Tyle, że analityku! Twoim celem nie jest wysmażenie BPMNów, UMLi, czy cholera wie czego tam jeszcze. Twoim celem jest dostarczenie tego, czego chce klient. Wespół z innymi wykonawcami na przykład z zespołem deweloperskim. Nie bez powodu na rynku pojawiły się biura architektoniczne mające własne ekipy.
Zauważ, że w opisanym przykładzie nie można mieć żalu ani do architektów, ani do ekipy. Problem leżał w tym, że setup organizacyjny pracy był niewłaściwy. Architekci poprzez zakontraktowanie PROJEKTU mieli inny cel niż ekpia.
Chociaż sam prowadziłem wiele szkoleń z UML, jestem raczej niechętny tego rodzaju formalnym notacjom. Ich intencja jest szczytna, ale prowokują one sytuacje, w których to chęć stworzenia poprawnego modelu zastępuje cele klienta. O wiele bardziej przemawiają do mnie nieformalne notacje "free form diagrams" prezentowane chociażby przez Simona Browna w "Software Architecture for Developers".
O tym, że, mało który deweloper używa UMLa zgodnie ze specyfikacją, nawet nie wspominam.

